Share with a friend

Please check you have entered all details correctly:

Options

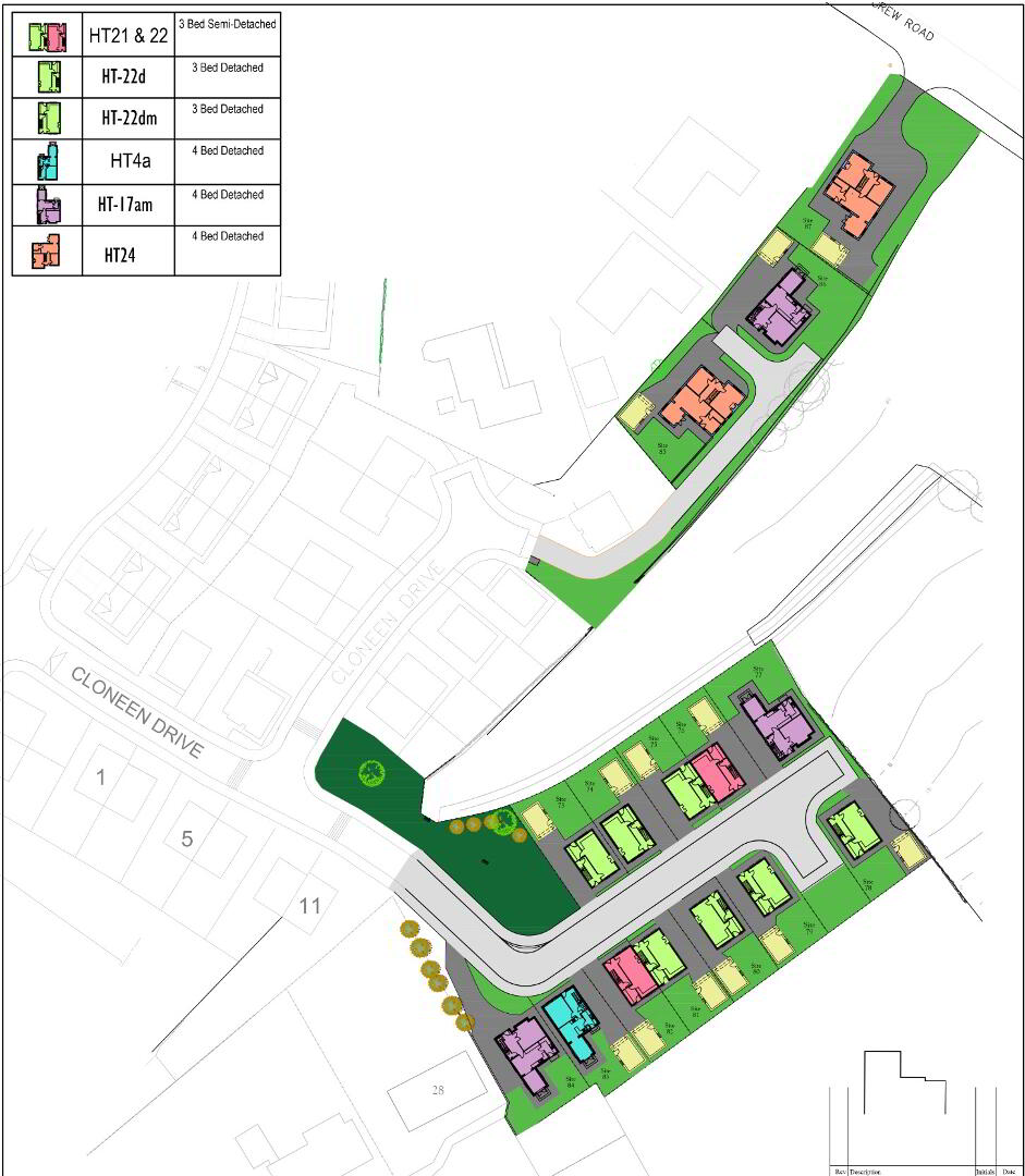
House Type 21, Cloneen, Crewe Road, Cloneen Crescent, Maghera

Price £234,500

Key Information

Address House Type 21, Cloneen, Crewe Road, Cloneen Crescent, Maghera
Price £234,500
Style Semi-detached House
Bedrooms 3
Receptions 1
Bathrooms 2
Status For sale

Property Units

Unit Name Price Size
Site 76 Cloneen £234,500 1,177 sq. feet
Site 82 Cloneen Sale Agreed 1,177 sq. feet

Additional Information

Last phase release of the exclusive Cloneen development: P & K McKaigue's flagship residental housing scheme in Maghera.

The established site offers a quiet country setting within walking distanceof Maghera, one of N.Ireland's most central towns.

Full turnkey modern package with high energy efficiency.

Choose your new home from a selection of Detached and Semi Detached house types.