Share with a friend

Please check you have entered all details correctly:

Options

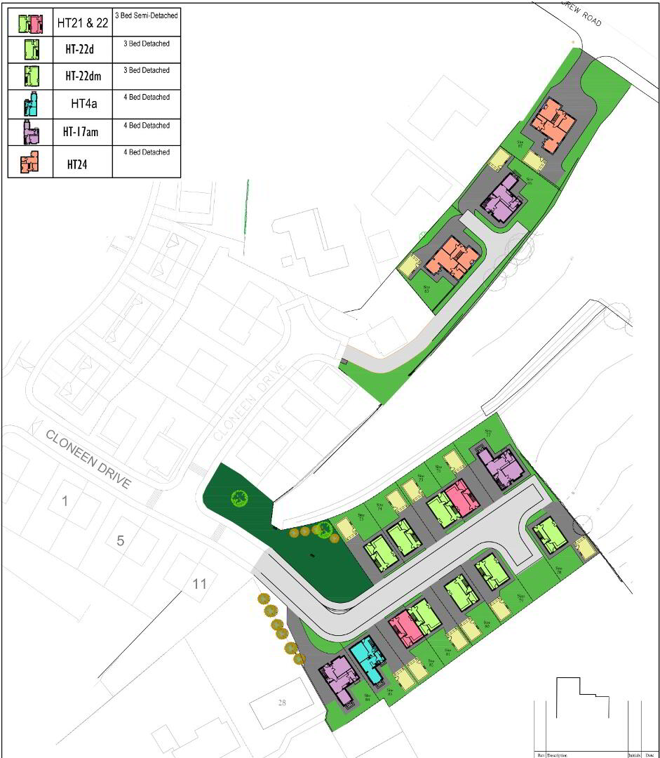
House Type 22d, Cloneen, Crewe Road, Cloneen Crescent, Maghera

Price £247,500

Key Information

Address House Type 22d, Cloneen, Crewe Road, Cloneen Crescent, Maghera
Price £247,500
Style Detached House
Bedrooms 3
Receptions 1
Bathrooms 2
Status For sale

Property Units

Unit Name Price Size
Site 73 Cloneen £247,500 1,136 sq. feet
Site 74 Cloneen £247,500 1,136 sq. feet
Site 78 Cloneen Sale Agreed 1,136 sq. feet
Site 79 Cloneen Sale Agreed 1,136 sq. feet
Site 80 Cloneen £247,500 1,136 sq. feet

Additional Information

Last phase release of the exclusive Cloneen development: P & K McKaigue's flagship residental housing scheme in Maghera.

The established site offers a quiet country setting within walking distanceof Maghera, one of N.Ireland's most central towns.

Full turnkey modern package with high energy efficiency.

Choose your new home from a selection of Detached and Semi Detached house types.